• Byggmann

218 – VEGA

SLIPPER NATUREN INN

Vega har alt du trenger på ett plan. Med storslåtte vinduer som strekker seg fra gulv til tak, inviteres de naturlige omgivelsene inn i stua og skaper en følelse av åpenhet.

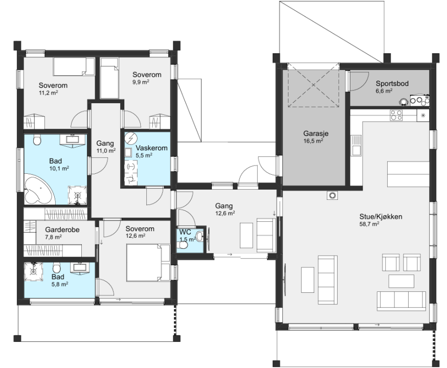
Med tre store soverom, to store bad, vaskerom, walk-in garderobe og et lite WC, er det god plass til hele familien – og litt til. Den integrerte garasjen og sportsboden gjør logistikken enkel, og alt er samlet på ett plan for maksimal tilgjengelighet.

Vega er et naturlig valg for deg som ønsker en moderne og komfortabel bolig med god plass, både inne og ute.

TEKNISK DATA

Bruksareal: 180,7, m²
Bebygd areal: 246,1 m²
Største lengde: 15,5 m
Største bredde: 20,2 m
Antall soverom: 3
Energimerking: Oransje - B

Innenfor arealgrensen til Husbanken

PLANTEGNINGER

FASADE

ØNSKER DU MER INFORMASJON?

FYLL UT SKJEMAET, SÅ KONTAKTER VI DEG FOR EN HYGGELIG BOLIGPRAT

    ARKITEKT

    ALT KAN TILPASSES FOR Å IMØTEKOMME DERES ØNSKER OG BEHOV

    Fordelene med å bygge et helt nytt hus, er at du kan få det akkurat slik som du vil. Trolig finner du en husmodell i vår katalog som kan passe, men kanskje ønsker du å tilpasse boligen etter egne ønsker og behov.

    Vi vil gjøre vårt ytterste for at du skal bli fornøyd, og hjelper deg hele veien fra idé til ferdig bolig. Vi har fagkunnskap og gir gode råd for at du skal få bygget en bolig som passer deg helt perfekt.»

    Trykk her for å lese mer om arkitekttjenester fra Byggmann.